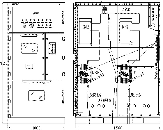
高壓變頻切換柜的結構實物圖,看完就懂
高壓變頻切換柜是系3.6~12kV三相交流50(60)Hz電機變頻切換供電裝置。性能滿足GB3906、IEC298等標準要求,具有防止誤分合接觸器、隔離開關等、防止誤入帶電隔室等“五防”聯鎖功能,配用真空接觸器和隔離開關實現切換方案,隔離開關提供檢修斷口,保證用電安全。
一、外殼的特點
切換柜的外殼可選用優質冷軋鋼板或進口敷鋁鋅鋼板經CNC機床加工,采取多重折邊工藝。這樣使整個柜體不僅具有精度高、很強的抗腐蝕與抗氧化作用,而且由于采用重折邊工藝,使柜體比其它同類設備柜體整體重量輕、機械強度高、外形美觀。柜體采用組裝式結構,用鉚螺母和高強度的螺栓聯接而成。這樣使加工生產周期短、零部件通用性強、占地面積小,便于組織生產。

二、隔室的結構
切換柜分為三個獨自的隔室,接觸器室、隔離開關室及繼電器室。
1.接觸器室
接觸器裝于開關室中,通過后門上下觀察窗,可以觀察隔室內接觸器所處位置、運行狀況。開關安裝位置充分考慮維護及檢修方便。
2.隔離開關室
隔離開關作為檢修隔離用,具有明顯斷器,裝于開關柜前部、后部,更于觀察。
3.繼電器室
繼電器儀表室內可安裝二次控制元件、儀表、帶電指示器,以及特殊要求的二次設備。控制線路敷設在足夠空間內,方便客戶外引控制電纜的連接和敷設。
三、基本原理
系統主回路采用變頻器加配套手動旁路開關柜,雙電源供電,一拖二控制方式。以實現1臺變頻器可控制2臺電動機的軟啟動和控制2臺電動機中的任何一臺變頻運行,或通過旁路柜實現電動機工頻運行的目的,如下圖。

圖中qf2、qf3為高壓開關,qs1、qs2、qs3、qs4、qs5、qs6為旁路開關柜手動隔離開關,m1、m2為電動機。
高壓變頻切換柜采用一拖一、一拖二等方式進行切換工作,工頻運行和變頻運行實現電氣互鎖關系,避免線路故障影響的工作運行。采用合理的設計方案,可以有效提供產品系統的可靠性,從而提升變頻調速的負載能力。












